Á¶´Þû ³ª¶óÀåÅÍ Á¾ÇÕ¼îÇθô µî·ÏÁ¦Ç°
LED°¡·Îµî±â±¸
LED°æ°üÁ¶¸í
LEDÅõ±¤µî
LEDÅͳεî
LEDº¸¾Èµî±â±¸
LED·¥ÇÁ
°æ°üÁ¶¸í
Á¶´Þû ³ª¶óÀåÅÍ Á¾ÇÕ¼îÇθô µî·Ï¿¹Á¤Á¦Ç°
LED±¤¼¶À¯¿ÁÖµî|°ø¿øµî
LEDÅõ±¤µî/LED¼ö¸ñÅõ»çµî(SPOT/FLOOD LIGHT)
LEDÅõ±¤µî
Åõ±¤µî
LED¼ö¸ñÅõ»çµî
¼ö¸ñÅõ»çµî
¾ÈÁ¤±âÇÔ
Æú´ë
LED¹ÙÅõ±¤µî/LED¹Ù/LEDÇ÷º½Ãºí
LED¹ÙÅõ±¤µî
LED¹Ù
LEDÇ÷º½Ãºí
LED¼öÁßµî(UnderWater Light)
LED¼öÁßµî
¹æ¼öÁ¶ÀÎÆ®º¹½º
LEDÁöÁßµî(InGround Light)
LEDÁöÁßµî/ÁöÁßµî
¹æ¼öÁ¶ÀÎÆ®º¹½º
LEDº¼¶óµåµî|Àܵðµî|Á¤¿øµî/¹®ÁÖµî/LEDž籤º¼¶óµåµî(Garden Light)
LEDº¼¶óµåµî¡¤Àܵðµî¡¤Á¤¿øµî
¹®ÁÖµî
LEDž籤º¼¶óµåµî(Garden Light)
¹Ù¶÷°³ºñ
LED¿ÁÖµî|°ø¿øµî (Pole Light)
LEDÆæ´øÆ® (LED Pendant)
LED°íõÀåµî(High Bay)/LED»ê¾÷µî(Industrial Light)/LED°øÀåµî(Factory)
LED°íÃâ·ÂÅõ±¤µî(High Power LED Projecting Light)|½ºÆ÷Ã÷Á¶¸í|Ÿ¿öÁ¶¸í
LEDȾ´Üº¸µµµî|Åõ±¤µî
LEDÅͳεî (Tunnel Light)|ÁÖÂ÷Àåµî|º®µî
LED°¡·ÎµîÇìµå/º¸¾Èµî/LEDž籤º¸¾Èµî(Street Light)
LED¼±¹ÚÁ¶¸í
LEDº®µî/LED±¤¼¶À¯º®¸éºÎÁ¶
LEDº®µî
LED±¤¼¶À¯º®¸éºÎÁ¶
LED ¹æ¼öÁ÷ºÎµî/º®ºÎµî
LED ÇǾƳëÁ¶¸í
LED½Ä¹°Àç¹èµî (LED Light For Growing Plants)
LED±â¿ÍÁöºØÁ¶¸í & »õÁ¶¸í
LED¹æÆøµî
¾î¸°ÀÌ º¸È£±¸¿ª
LED½Ã¼±À¯µµµî|¹Ù´Ú½Ã¼±À¯µµµî
LEDž籤¸Å¸³µî|Ç¥½Ãµî (Solar Light)
LED·¥ÇÁ(Lamp)
LEDÁ¢Çöµî|Á¢¾Èµî
·¹ÀÌÀúÁ¶¸í (Laser)
LED°æ°üÁ¶¸í ±âŸ (etc.)
home > Products >
LED¹ÙÅõ±¤µî£ü
LED¹Ù£ü
LEDÇ÷º½Ãºí£ü
LED¼öÁßµî£ü
¹æ¼öÁ¶ÀÎÆ®º¹½º£ü
LEDÁöÁßµî/ÁöÁßµî£ü
¹æ¼öÁ¶ÀÎÆ®º¹½º£ü
LEDº®µî£ü
£ü
LED¿øÇü¸ÅÀÔµî£ü
LED»ç°¢¸ÅÀÔµî£ü
LED»ç°¢Åõ±¤±â£ü
£ü
£ü
£ü
LED´ë¸®¼® Á¶¸í£ü
LEDÅ©¸®½ºÅ» Á¶¸í£ü
LED¹«´ëÁ¶¸í£ü
¹«´ëÁ¶¸í£ü
¹«´ëÈ¿°úÁ¶¸í£ü
¹«´ëÁ¶¸íÈ¿°ú±â±â£ü
¼öÀÔÁ¶¸í£ü
¿ÀÅ丮ÇÁÆÃ£ü
¿ÀÅ丮ÇÁÆÃ£ü
LEDÁ÷ºÎ¤ý¼¾¼µî£ü
£ü
LEDº¼¶óµåµî¡¤Àܵðµî¡¤Á¤¿øµî£ü
¹®ÁÖµî£ü
LEDž籤º¼¶óµåµî(Garden Light)£ü
LED°¡·Îµî±â±¸£ü
LED°æ°üÁ¶¸í£ü
LEDÅõ±¤µî£ü
LEDÅͳεî£ü
LEDº¸¾Èµî±â±¸£ü
¹Ù¶÷°³ºñ£ü
£ü
LED±¤¼¶À¯º®¸éºÎÁ¶£ü
LEDᴂ磟
£ü
£ü
°æ°üÁ¶¸í£ü
LEDÅõ±¤µî£ü
Åõ±¤µî£ü
LED¼ö¸ñÅõ»çµî£ü
¼ö¸ñÅõ»çµî£ü
¾ÈÁ¤±âÇÔ£ü
Æú´ë£ü
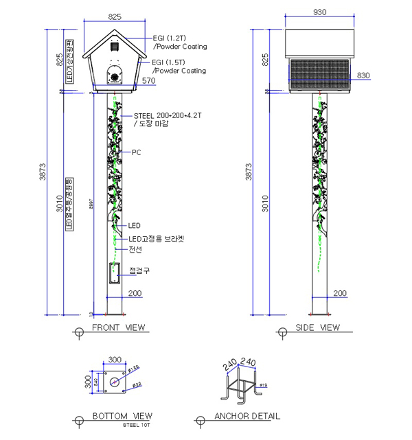
RB UW500
Á¦Ç°¹øÈ£
:
RB UW500
»çÀÌÁî
:
825 930 H3873
³ª¶óÀåÅÍ ¹°Ç°½Äº°¹øÈ£ :
¼¼ºÎǰ¸í: LED°æ°üÁ¶¸íµî±â±¸
(¡Øµî±â±¸ »ö»ó, Ä¡¼ö µî »ç¾çÀÌ Á¶±Ý ´Ù¸¦ ¼ö ÀÖ½À´Ï´Ù)
Á¦Ç°¸í :
LED¿ÁÖµî+±â»óÀü±¤ÆÇ(RB UW500)
Á¦Ç°¹øÈ£ :
RB UW500
Á¦Ç°Å©±â :
W825 D930 H3873 ¡¾ mm (µµ¸éÂü°í )
[LED±â»óÀü±¤ÆÇ]
¼ÒºñÀü·Â : 500WÀÌÇÏ
Àü¾Ð :AC220V
±âº»½Ã½ºÅÛ : ÇöÁö ±â»óÁö¼ö Ç¥½Ã Àü±¤ÆÇ
°üÃøÀåÄ¡ ¹× ¼¾¼ : ¿Âµµ °¨Áö¼¾¼
¿ÜÇÔ : EGI 1.6T / µµÀå ¸¶°¨
¿Âµµ½Àµµ°è / Àü±¤ÆÇ / LED¸ðµâ : DC12V
±âÆÇ : AUDIOº¸µå / LTE¶ó¿ìÅÍ / ¸ÞÀÎÄÜÆ®·Ñ·¯ / RGBÄÜÆ®·Ñ·¯
Ä¡¼ö : W825 D930 H863 ¡¾ mm
[LED¿ÁÖµî/°ø¿øµî]
¼ÒºñÀü·Â : 35W
Àü¾Ð : DC12V
ÀçÁú : BODY, POLE : ½ºÆ¿ 4.2T/ ºÐüµµÀå
DIFFUSER : PC
DRAWING PLAN :