
³ª¶óÀåÅÍ ¹°Ç°½Äº°¹øÈ£ : 26026779 ¼¼ºÎǰ¸í: LED°æ°üÁ¶¸í±â±¸
(¡Øµî±â±¸ »ö»ó, Ä¡¼ö µî »ç¾çÀÌ Á¶±Ý ´Ù¸¦ ¼ö ÀÖ½À´Ï´Ù.)
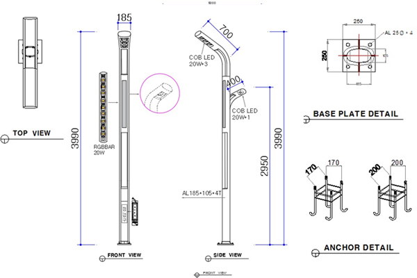
Á¦Ç°¸í : LED¿ÁÖµî,°ø¿øµî / °æ°üÁ¶¸í Á¦Ç°¹øÈ£ : RB-TH148-3COT Á¦Ç°Å©±â : ÇìµåW185 L700 L400 ÀüüH3,990 mm (µµ¸éÂü°í ) ¿ëµµ : LED°æ°üÁ¶¸í ¿Ü ±âŸ
MATERIAL : BODY : ¾Ë·ç¹Ì´½ /ºÐüµµÀå etc DIFFUSER : ACRYL or PC etc POWER(W) : 100W Çìµå:20Wx3EA, ±âµÕ:¾Õ:20W RGB, µÚ:20W VOLTAGE(V) : DC12~36V CCT : WHITE, RGB * SMPS º°µµ
* ¾ÓÄ« : ÇùÀÇ |
DRAWING PLAN : 

|