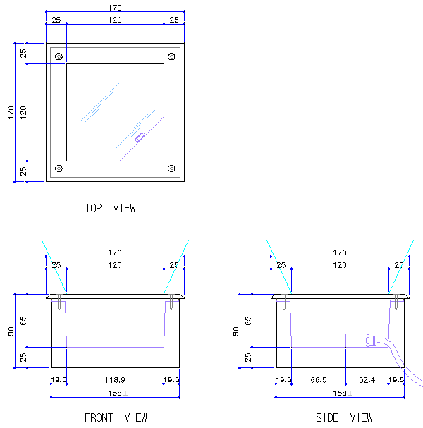
Á¦Ç°¸í : LEDÁöÁßµî Á¦Ç°¹øÈ£ : RB GDL44 Á¦Ç°Å©±â : W170 D170 H90
¿ëµµ : LED ¸ÅÀÔÇü ÁöÁßµî , ¿ÜºÎ Á÷.°£Á¢Á¶¸í , ±âŸ
BODY : PLASTIC RECESSED BOX / STS FRAME / Aluminium Die Casting BODY DIFFUSER : TEMPERED GLASS POWER : 10W ¡¾ Color : Warm White / White / R. G. B VOLTAGE : 220V / 24V /12V LENS ANGLE : 10¢ª / 25¢ª / 35¢ª / 130¢ª (¡Øµî±â±¸ »ö»ó, Ä¡¼ö µî »ç¾çÀÌ Á¶±Ý ´Ù¸¦ ¼ö ÀÖ½À´Ï´Ù)
DRAWING PLAN :
| 
 |